2012年9月定例会一般質問

「子ども図書館設立について」(江島カルチャーセンター)

○25番(中西大輔君)
 議席番号25,すずか倶楽部中西大輔です。
 先ほどから,外,雷が鳴ってまして,先日のことが,この質問中に,もしも起こった場合,どうなるんだろうということが話題になっておりましたが,それはさておき,質問のほうをさせていただきます。
 先ほど藤浪議員もありましたが,きょうは,9月11日は,アメリカの同時多発テロから11年,私にとっても,このCNNの映像で生で見ていたことからすると,非常に大きな激変の時代に入ったのだなということを予感させる日でした。
 そのようなことを踏まえながら,質問のほうもいろいろ考えておりますが,話を変えまして,せんだって第5次総合計画,平成25年度微調整の中で,伊勢若松駅のバリアフリー化というのが事業として上がっておりまして,非常にありがたいことだなと思っております。これも質問に関係ないわけではなくて,総合計画の微調整というのが後々話題に出てきますので,よろしくお願いします。

 今回の一般質問では大きく二つ,子供図書館設立についてと地域維持型JVについてを質問させていただきます。

 いろいろ話は出ますが,答弁に当たって,もし聞き返す部分がありましたら,どうぞ聞かせていただければと思いますし,また,提案的なことも今後ともいろいろ考えていただければなと思います。
 それでは,資料,映写していただけますでしょうか。
              〔資料をスクリーンに示す〕


 これは,江島カルチャーセンターの外観なんですけれども,一つ目の質問,重ねて言いますが,子供図書館設立について,この論点というのは,この江島カルチャーセンターを子供図書館として,完全に市の所管にしてしまい,あわせて東部地域の子育て支援の拠点にしてはどうかということです。

 江島カルチャーセンターですが,これ,実はわかりにくい場所に建っておりまして,なかなか,そんなのあったのという方もいらっしゃるのですが,言葉で表現しますと,白子駅を起点にして行くと,白子駅西ロータリーのところから出まして白子柳線,いわゆるランタン通りのところですけれども,北に向いて歩いて行きます。そうすると,ランタン通りを北に向いて歩いて行くと,右手にコンビニの見える四つ目の信号があるんですけれども,そこを東に右に曲がります。東向いて右に曲がります。そしたら,そうしますと,すぐに十字路がありますので,そこを今度は南に向いて右に曲がる。そして,すぐ次,また曲がりがあるんですけれども,今度は左に左折しますと,少し行くと江島カルチャーセンターがあるということです。
 地図であえて書いてないのは,わかりにくいということを言葉で説明しているようなものなので御了承ください。

 それでは,次の資料のほう,お願いします。

 この江島カルチャーセンターですが,これ,内側の平面図になります。御存じの方も多いと思いますが,1階は児童図書室と芸術文化協会の事務局,文化振興事業団が運営している受付,和室,バリアフリーと男女それぞれのトイレがあります。
 次,映してください。

 これは,児童図書室のスペースを映したものです。
 ここにつきましては,平成18年から,市立図書館が蔵書の充実と図書館の蔵書を配本して,本館の分室的役割を担う事業を行い,文化振興事業団のほうで雇用された職員の方が図書館のシステムを使って,図書の貸し出しを行っています。
 ちなみに,この床の色,写真で違っていますが,左側のところにネズミ色の部分がありますが,ここは実は土足で歩くスペースになってます。
 右側の若草色の部分ですが,こちらのほうは,はだしで歩けるところになっています。ですから,ここを利用される親子の方は,ネズミ色の部分で靴を脱いで,若草色のところははだしで入るというような形になっています。これにつきましては,はだしで使えるようになったというのは,市民の方々の意見があって,それを採用されたからだというふうに聞いております。

 次,お願いします。

 これ,入り口から入ったところの視点ですが,現在のところ,今,先ほど映写しました図書スペースがすぐには見えない状況になっているというのがわかっていただけると思います。
 次,お願いします。

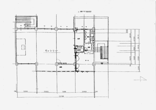
 これ,2階の平面図ですが,2階には,約144平方メートルのギャラリーと,階段上がったところに約28平方メートルのホール,また,男女共用になっておりますトイレがあります。
 次,お願いします。

 ホールなんですけれども,ホール,ここ実際に行くと,それほど狭く感じません。ここで,それをそのまま時間も過ごすことができるのではないかと思います。
 また,映っておりませんが,右側には展示ができる器具も設置されています。
 次,お願いします。
 これ,ギャラリーになりますが,これ,1フロアだけではなくて,途中パーテーションで区切ることができ,もちろんこの写真には映っておりませんが,入って左側には通路兼,今,展示器具が置いてあるスペースがあります。
 資料,ありがとうございます。
                〔資料の提示を終了〕

 この江島カルチャーセンターなんですけれども,以前から館長さんが読み聞かせで精力的に活動されたりしておりました。愛宕小学校であったり,白子保育園であったり,いろんなところに行って読み聞かせをしていただいて,愛宕幼稚園の卒園式にも招かれていたということも見ました。
 また,今年度につきましては,今年度から就任された館長さんが,近隣の小学校に告知を働きかけるなどされ,児童図書室の利用は堅調に伸びています。ちなみに,こういうふうな資料をつくって,来た子供たちに説明されているということも聞きました。そう考えると,児童図書館ということについてのニーズ自体は,鈴鹿市の中で非常に高いものだと考えられます。

 しかし,ギャラリースペースについてですが,この新庁舎ができてから1階のところに,市民ギャラリーが設置されたこと,また,カルチャーセンター自体がエレベーターがないことから,身障者の方が,障害の持った方が使いにくいこともあってか,近年の利用者の方は減少しております。
 そのようなことを考えると,芸術関係の展示ニーズというのは,カルチャーセンターのほうから,実はこっちの庁舎のほうに,もう移行しているというふうに言えると思います。
 そこで,この施設の機能のうち,児童図書室の機能を拡張して,そこに子育て支援の機能を組み合わせた形で,子供図書館として再編する時期に来ている,鈴鹿市として再編するべきだと考えるわけです。

 同時に,ここのところで,今,文化振興事業団さんと芸術文化協会さんがいらっしゃいますが,そちらのほうにつきましては,やはり文化会館の周辺,もしくは,こちら市民ギャラリーのある市庁舎周辺に移動していただくように考えていくほうが,鈴鹿市にとっても文化事業の振興に意義があるのではないかと考えるところです。

 話,進めまして,江島カルチャーセンターの管理運営を平成23年度決算から金銭面で見ると,鈴鹿市文化振興事業団が鈴鹿市から3,072万7,498円 の補助金を受けて,そこから土地と建物の賃借料として334万8,300円を鈴鹿市に支払って,なおかつセンターの職員さん3名の給与と賃金として311 万9,474円,合わせて646万7,774円をかけて運営している状態になっています。
 まずもって,鈴鹿市として補助金を出す一方で,このような形で,また賃借料取って運営するというようなあり方ですね,これ自体も,そもそも見直すべきことだと考えます。

 次に,この児童,子育て支援の機能について,子供図書館として,江島カルチャーセンターに子育て支援機能を追加するについては,近隣にあります勤労青少年ホームで,現在,はぐはぐの事業が行われております。この事業を江島カルチャーセンターに移管すれば,大きな変更は特に必要ないと考えられるところです。

 また,勤労青少年ホームについても,施設の老朽化などから考えると,恐らく数年のうちに存続も含めた議論をせざるを得ない状況であるだろうというふうに考えます。
 また,ホームのここ数年の利用状況を見ると,本来の勤労青少年の利用というのが,平成16年は資料から見たら,1万1,463人いたのが,平成23年には3,251人に減少,平成19年度から,子育て支援事業はぐはぐのほうがされておりますが,それを加味しても,全体として利用は減少傾向にありますので,以前からいろいろ議論ありますが,当初の目的を達成したのではないかというふうに考えられます。ですので,鈴鹿市としても,やはりこの施設のあり方というのは整理するべき課題なのだなというふうに考えます。

 これらのことを考え合わせると,財政面からの課題ですね。補助金を出しながら運営費等も含めて出しているというような状況を考え直すに当たって,勤労青少年ホームの再編とか整理をすることとあわせると,課題を解決するのは難しくないことではないかなと考えるところです。
 勤労青少年ホームについて,平成23年度の決算を見ると,臨時雇人賃金として318万3,420円,その他の運営管理コスト686万2,286円の合計1,004万5,706円が支出されています。この金額に,先ほど挙げましたカルチャーセンターにおける人件費311万9,474円を重ね合わせて考えれば,十分に江島カルチャーセンターの運営を賄う財源というのは捻出できるであろうと考えます。
 そのようなことを言って,勤労青少年ホームの跡地活用,また,つまりは資産の整理になってくるんですけど,それを行うことというのは,行財政経営改革の考えともなじむものだと言えるのではないでしょうか。

 ただ,一方,今回の質問に当たっていろいろ調べる中で,行政内部での課題というのが一つあります。これは,先ほど挙げました総合計画と関連することですが,第5次総合計画で事業名,図書館分室機能強化というのがあったんですね。それは,西部地域の農業環境センターの図書室,図書スペースとあわせて江島カルチャーセンターは,東部地域の核として図書館の分室化を図るとされていたんですけれども,実は平成23年度の総合計画の微調整において,施設の調整が困難であるため,実施計画から取り下げるというふうにされています。
 この点は,今回,質問内容の実現を考えるに当たって大きな課題になりますので,この点についても説明していただきたいなと思うところです。

 カルチャーセンター周辺というのは,周辺住宅地で大きな音は出せないということ,また,駐車場は約20台分であること,建築後,20年が経過しているため,大規模改修の必要があることや,さきに述べましたように,エレベーターの設置も検討しないといけないなどの課題があるとは思いますが,江島カルチャーセンターを子供図書館として市の所管として確立する,あわせて東部地域での子育て支援の拠点にするということについて,ここまでのところで鈴鹿市の見解をお聞かせください。

○議長(矢野仁志君) 文化振興部長。
             〔文化振興部長 幸田至章君登壇〕
○文化振興部長(幸田至章君)
 それでは,私から,中西議員の1番目の子供図書館設立について,江島カルチャーセンターの御質問に,答弁申し上げます。
 現在,中江島町にあります江島カルチャーセンターは,以前,江島土地区画整理組合が所有し,事務所として使用していた土地と建物でございます。
 平成11年に土地区画整理組合が解散をするに当たり,組合の財産処分の方法を検討した結果,市への無償譲渡を決定し,平成11年12月21日,市の普通財産として寄附採納されたものでございます。
 本市では,本市の芸術文化の振興と地域の社会教育の充実に寄与することを目的といたしまして,財団法人鈴鹿市文化振興事業団に施設の運用を委託いたしまして,地域の文化施設として活用していただくことといたしました。

 この施設は,議員の御説明のとおり,1階に鈴鹿市芸術文化協会の事務所と和室,児童・幼児を対象とした図書室がございます。2階には美術作品等の展示や会議のできるホールもございます。
 平成18年には,市立図書館の貸し出しシステムと,江島カルチャーセンターの図書室がLANで接続され,配本サービスの一端を担う本市の東部地域の図書事業のサービスポイントの核となっております。

 この児童図書室の利用状況といたしまして,平成12年に開設以来,平成16年度の貸し出し人数1万3,232人,貸し出し冊数5万7,732冊をピークに,平成21年度には貸し出し冊数がピーク時の約68%になるなど,減少傾向にありましたが,翌年以降,暫時増加に向かい,平成23年度は貸し出し人数 9,623人,貸し出し冊数4万3,406冊と,ピーク時の約75%まで増加し,利用は上昇に向かいつつございます。
 また,図書館の貸し出し以外に,この図書室を利用される人数の統計では,年間1万人を常に超えておりまして,平成22年度と23年度は1万3,000人を超える利用者がございました。1日当たり,ほぼ40人から50人の利用がございます。

 江島カルチャーセンターの図書室の市立図書館分室化につきましては,市域全域への図書館サービスを展開する中,特に児童や幼児の読書活動の推進を図るため,図書館分室化事業として,平成21年度版鈴鹿市総合計画実施計画に図書館分室機能強化のため,改修計画を掲げ,準備を進めてきた経緯がございます。
 しかし,図書館分室化に当たって,江島カルチャーセンター内にあります鈴鹿市芸術文化協会の事務所移転,近隣自治会との調整,施設の改修等の問題点や課題について,慎重に内部で検討を重ねてまいりました結果,図書館のあり方を明確にするため,図書館ビジョンに当たる図書館サービス方針を策定した上で,再度,調整するという結論になり,現在に至っております。

 財団法人鈴鹿市文化振興事業団から図書館へ事業を転換することで,子育て支援も含めた機能を持つ施設として,子供図書館を確立してはどうかというお尋ねでございますが,図書館分室として,管理運営を直接に行うことで,地域の学校や幼稚園,保育所,自治会などへの働きかけを行い,連携による事業に取り組むことが可能となります。
 また,さらに市民の利用促進を図るためのPR活動も図書館職員が主体的に行うことによりまして,よりきめ細かなサービスが提供できると考えます。

 しかしながら,さきに申し上げましたとおり,鈴鹿市芸術文化協会事務所の移転先や駐車場の不足,図書館ビジョンに当たる図書館サービス方針等が整理されていない現状でございますので,財団法人鈴鹿市文化振興事業団を所管する文化課と図書館で,江島カルチャーセンターの図書館分室化に向け,前向きに協議するとともに,図書館においては,図書館サービス方針を平成25年度に策定を予定いたしたく,年内にも市民の意識調査等に着手したいと考えております。

 いずれにいたしましても,図書館の分室化を進めることで,専門性を持つ司書を配置することにより,魅力ある図書館事業の展開や地域に密着したサービスが提供でき,主な利用者となる幼児・児童や,その保護者を対象にした学習会やおはなし会,紙芝居などの子供の情操や感性を育むイベントを開催することにより,地域の子供たちの安心できる居場所としての機能を持つ施設として,活用を図ってまいりたいと考えておりますので御理解くださいますよう,お願いをいたします。
 以上でございます。

○議長(矢野仁志君) 中西大輔議員。
              〔25番 中西大輔君登壇〕
○25番(中西大輔君)
 前向きに考えていただけるということですので,それはありがたいことだと思いますが,考え方を変えていくべきだなと思うことが1点ありまして,駐車場が不足というふうな話がありましたが,駐車場が足らない,20台ぐらいとめれる,足らないということを言い始めてたら,鈴鹿というのは,いつまでたっても公共交通とか,コンパクトシティとかとは,遠い話になってしまうのではないかなと思います。市立体育館であるとか,白子サンズの駐車場がありますから,そういうところを活用すると,いろいろ柔軟な考え方,するべきではないかなと思います。

 通告の中項目の二つ目で,図書館ビジョンの話がありますが,ちょっとその話の前に,建物についての話を整理させていただきますと,まず,カルチャーセンター,この質問に当たって伺ったときに,その現場で言われたことは,空調設備が壊れてしまったと。パーツというのが,もう20年前の機器であるから,もうパーツの基盤をかえないとだめなんだけど,その基盤がもう新しいものがありませんということを聞きました。ということは,大きな改修も必要になると思いますが,まず,その点,どういうふうに改修に取り組まれるのか,見解のほうをお聞かせください。


○議長(矢野仁志君) 文化振興部参事。
○文化振興部参事(江藤 昭君)
 空調設備の改修につきまして,答弁申し上げます。
 御存じのように,江島カルチャーセンターは,平成5年に建築され,20年近く経過しており,修理が必要な箇所も出てきております。
 御質問の空調設備につきましては,近年は,地球温暖化の影響などから,夏日や猛暑日となる期間が長くなってきており,特に子供や高齢者の方には,熱中症などの注意が必要とされ,子供たちが多く利用する江島カルチャーセンターにおいても,空調機器の重要性は認識をしております。

 設備の改修につきましては,ふぐあいが生じるごとに部品の取りかえなど,時間がかかる場合もありますが,すぐに修繕を行っております。
 しかし,老朽化による経年劣化やふぐあいなどの心配をかけながらも,新しい設備に取りかえることができていないことは,御指摘のとおりでございます。
 今後も,ふぐあいが生じた場合には,直ちに修繕を実施し,利用者へのサービス低下にならないよう,対応してまいりたいと存じます。
 また,修繕不能となった場合には,新しく設置してまいりたいと存じますので御理解いただきますよう,よろしくお願いいたします。

○議長(矢野仁志君) 中西大輔議員。
              〔25番 中西大輔君登壇〕
○25番(中西大輔君)
 現況を聞いてないからだと思うんですけれども,現況は来てもらって,ちょっと直してもらったけど,3日間,スイッチがつきっ放しになって困ったんですわという話があったりするんですね。なので,ちょこちょこ直すんではなくて,本当にしっかり,まず直さないことには,長寿命化という 話もできないんではないかなと考えます。
 その点は,しっかり考えていただけると思いますので,次に移ります。

 4枚目の写真のほう,もう一度映していただけますでしょうか。
              〔資料をスクリーンに示す〕


 先ほど言いましたように,この壁ですね,仕切られているわけですけれども,これ,実は特に構造上,上からの荷重を支えている壁ではありません。いわゆる耐力壁というんですかね,それではありません。受付の方,事務所の方が,その奥の図書室の状況がほとんど見えなくて,小さな子供さんがいたりすると,どういうふうになっているのか気になって不安だということがあります。
 ですので,まず,この壁が見えないということですね,それについては,この壁を撤去してフロアを広くしたほうが,今,現状使っている状態でも非常に価値が上がるのではないかと考えますが,その点はいかがお考えでしょうか,お答えください。
                〔資料の提示を終了〕


○議長(矢野仁志君) 文化振興部参事。
○文化振興部参事(江藤 昭君)
 間仕切り壁の撤去について,答弁申し上げます。
 御指摘の壁は,事務所と図書の閲覧室を隔てておりますが,スペースを利用して備品や書架を置き,冊数の確保などをしております。
 図書室の主な利用者である子供たちの見守りや施設管理上の見地からも,事務室と図書室をワンフロアにするオープンスペース化の御提案につきましては,ス ペースの増加や,職員と子供たちのコミュニケーションの向上も期待できると思われます。そのため,この壁が耐震の関係などで建築基準法上,取り外してよいものか,調査をしてまいりたいと存じますが,壁を取り払うことによる図書機能低下など,メリット,デメリットについて,利用者の皆様方のさまざまな御意見があることも考えられますので,利用者や関係者の御意見をお伺いして,壁の撤去について検討をしていきたいと考えておりますので御理解いただきますよう,お願いいたします。

○議長(矢野仁志君) 中西大輔議員。
              〔25番 中西大輔君登壇〕
○25番(中西大輔君)
 普通に考えて広く見えたほうが,開放的で気持ちいいですよね。安全も見えますよね。それを検討します,検討しますと言ったら,動かないので,まずどういうふうにするか,しっかり考えていただくべきじゃないかなと思います。
 そのことは,もう今の答弁のままで結構ですので,そのことと関連することとして,先ほどの答弁にも出ておりましたが,鈴鹿市として,図書館のあり方についての基本計画であったり,図書サービス方針ということがないから,なかなか取り組めないんだということが出ております。

 この点について,お聞きしたいんですけれども,過去,私,また,すずか倶楽部として東京都の千代田区,東京都北区,北海道函館市と非常に魅力的な取り組みをしている図書館のほうを視察させていただきました。それぞれ見ていると,しっかりとしたビジョンがあって,考えがあってこその運営であることを説明されている職員の方々の話し方,熱意のある話し方も含めて感じたところなんですね。
 また最近では,賛否両論あると思いますが,佐賀県武雄市での図書館の指定管理のあり方ですね,TSUTAYAさんのシステムを使って運営していくということが,賛否両論ありますが,出ておりますが,この住民にとって価値のある図書サービスを提供していくということを,やはり鈴鹿市としては,これから文化行政の中で重点的に考えていかないといけないと思いますが,現在,鈴鹿市として,この図書館を使ったビジョンであるとか,図書サービスのあり方であるとか,その点について,どのように取り組まれているのか,お聞かせください。


○議長(矢野仁志君) 文化振興部長。
○文化振興部長(幸田至章君)
 それでは,図書館ビジョンについての御質問でございますが,図書館ビジョンを具現化するための方針や施策を定めたものは,現在ございませんが,図書館サービスの更新の策定に向け,今現在,準備を進めておるところでございます。
 その中で,利用環境の充実,利用者に応じたサービスの充実,地域サービス事業の充実の3点を基本に,図書館全体のサービス体制を確立していきたいと考えております。

 まず,利用環境の充実でございますが,図書館の運営につきましては,現在の施設を有効に活用していくという観点から,当面の間は,老朽化する施設及び設備改修,修繕することにより,維持管理に努めることで利用環境を充実させてまいりたいと思っております。
 次に,利用者に応じたサービスの充実でございますが,図書館利用者は幅広い年代にわたることから,それぞれの年齢層や障害をお持ちの方に合ったサービスの提供が求められております。また,新たな電子図書などの取り組みを初め,ニーズに合った図書媒体,図書資料の収集や提供方法も充実させてまいりたいと考えております。

 次に,地域サービス事業の充実でございますが,市民の誰もが市内のどこに住んでいても図書資料が利用できる体制が求められていることから,市全域に均一で効果的な図書サービスが受けられるよう,サービスポイントの拡充を図る必要はございます。
 さらに,地域サービス事業の充実を図ることは,各地区で本館と同等のサービス拡充を目指すものでございまして,各公民館などに配本事業を行っております。
 また,配本事業に合わせまして,図書館の職員が各公民館をほぼ2週間ごとに巡回をいたしまして,直接,貸し出しなどのサービスを行っております。
 ふれあいライブラリーを実施しておりまして,本館と同等のサービスがさらに求められることから,その充実にも努めてまいります。
 中でも,地域サービスを展開する上で重要な位置を占めるのが,実質的に図書館分室の役割を担っている江島カルチャーセンターでございます。現在,同センターの利用者や貸し出し冊数も多く,まさに,子供図書館としての役割を果たしていると言えます。
 今後は,図書館サービス方針を策定する中で,先ほど御質問もありました,江島カルチャーセンターの諸問題を解決しながら,その中で子供図書館として図書館分室化を検討していかなければならないとも考えておりますので御理解いただきますよう,お願いをいたします。

○議長(矢野仁志君) 中西大輔議員。
              〔25番 中西大輔君登壇〕
○25番(中西大輔君)
 簡単に一言なんですけれども,ビジョン策定の際に,千代田区さんなんかだと,国立国会図書館の方をアドバイザーに招いてやったりしてるんですけれども,そういうことを検討できるかどうか,簡単にお聞かせください。


○議長(矢野仁志君) 文化振興部長。
○文化振興部長(幸田至章君)
 今後,策定に当たりましては,そういう委員の選定も含めまして検討してまいりますが,今現在,図書館運営委員の先生方もおみえになりますので,その方を中心に,今後,検討してまいりたいと思っておりますので御理解いただきますよう,お願いいたします。

○議長(矢野仁志君) 中西大輔議員。
              〔25番 中西大輔君登壇〕
○25番(中西大輔君)
 積極的に外部の風も入れていただいて,内側の風とまぜていただければなと思います。
 それで,まあまあ民間の運営ということが出ましたので,1点だけ,ちょっと話としてつなげることがあるんですけれども,子供図書館運営するときに,公か民間かというところで,別に公であろうと,民間であろうと,いろいろな考え方ができると思います。
 ただ,民間として運営を考えたときにですが,例えば子育て支援を行っているNPOの団体がありますが,そのようなところに運営を委託して,そのNPOが育っていくための資金とする,また,子育て事業もやっていただくという方法があるわけですね。ですので,そのような形,今回の質問事項についても,現状維持ではなくて,将来見越して,いろいろ検討を深めていただきたいと思います。
 最後に,念のためにお聞きしたいのですが,先ほど総合計画の微調整でおろされたということがありましたが,今回の質問通じて,総合計画の26年度の微調整で,今回,改めてこの子供図書館設立の事業名で,江島カルチャーセンターの整備機能統合等を行うことを提案しますが,そのことについて,微調整に向けて検討ができるかどうか,お答えください。


○議長(矢野仁志君) 文化振興部長。
○文化振興部長(幸田至章君)
 その質問内容につきましても,今後,図書館ビジョンに,これから策定に向かっていきますので,その中で総合計画の実施計画等の事業計画についても検討してまいりたいと思いますので御理解いただきたいと思います。

○議長(矢野仁志君) 中西大輔議員。
              〔25番 中西大輔君登壇〕
○25番(中西大輔君)
 わかりました。
 ビジョンの策定と進捗状況のほうは注目させていただきます。